Location: Paris, France
Type: Residential Renovation
Year: 2014
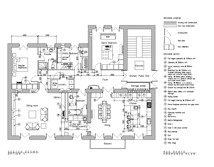
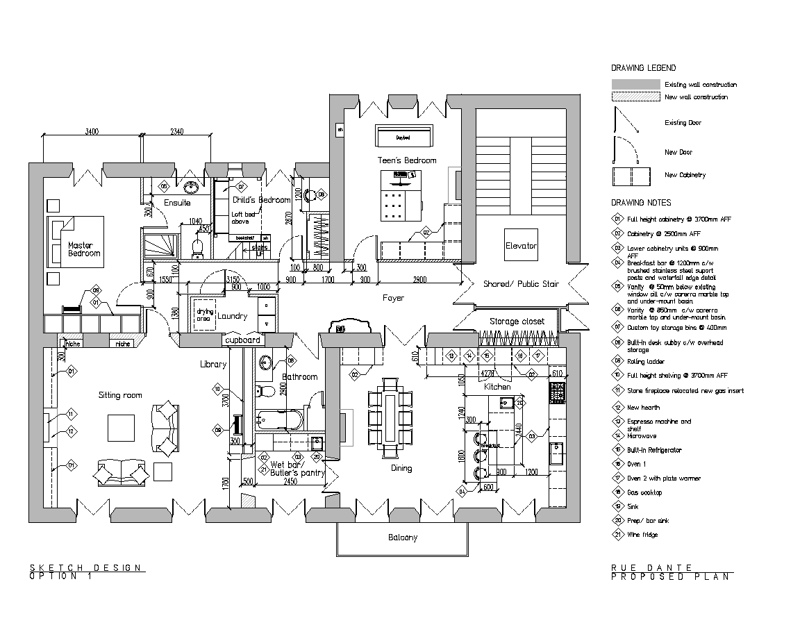
The 1920s apartment was in a poorly state. It was a warren of bedsits and small lavatories. The brief was to create a single family apartment. The tall windows, fireplaces and 3.7m ceilings are to have their sense of place once again.
open modern kitchen
Dining area with butlers pantry beyond
Butlers Pantry sits between dining and sitting areas
Library
Sitting area
Chanel perfume inspired bedroom
3d plan overall view of apartment.







